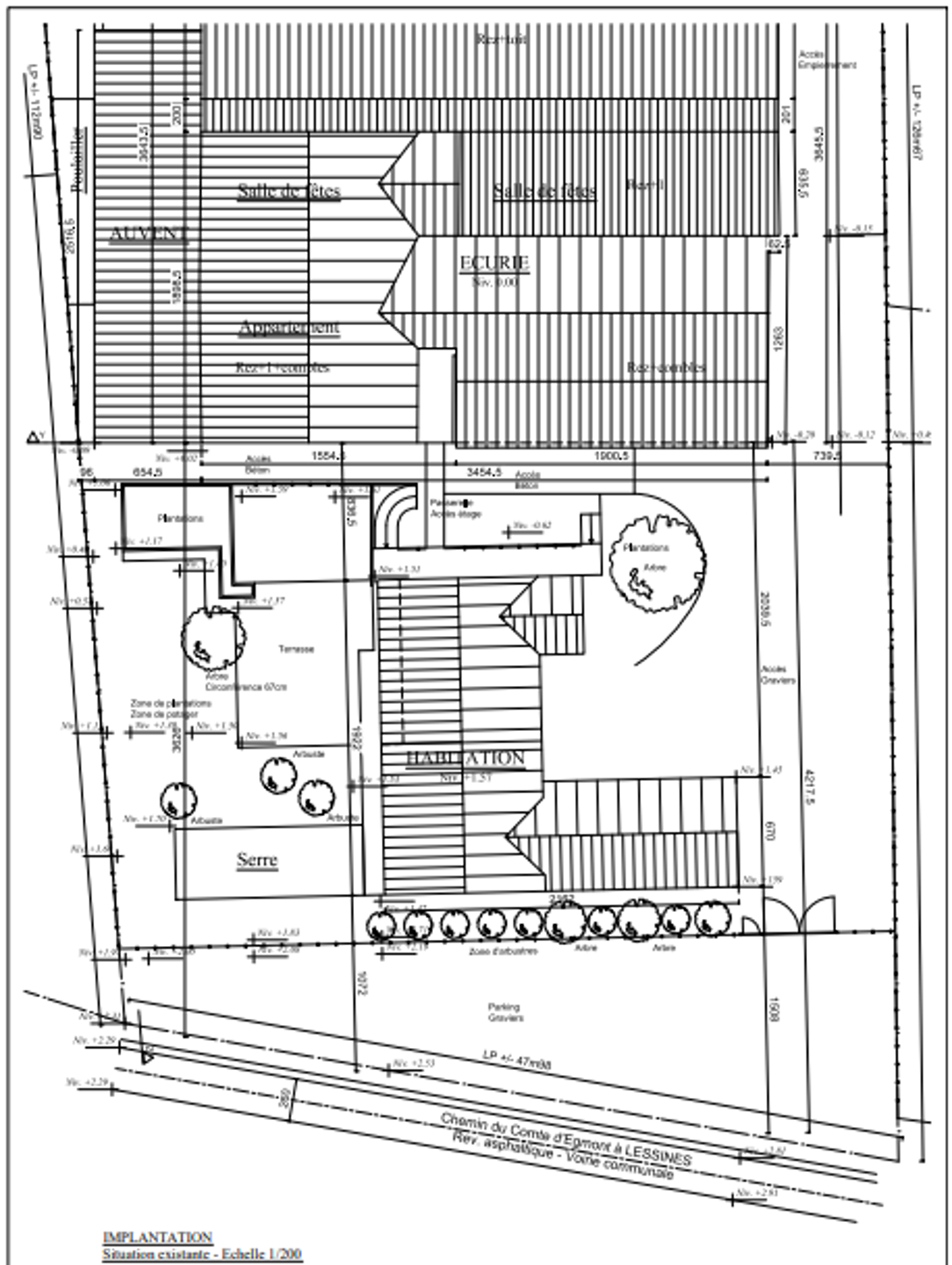
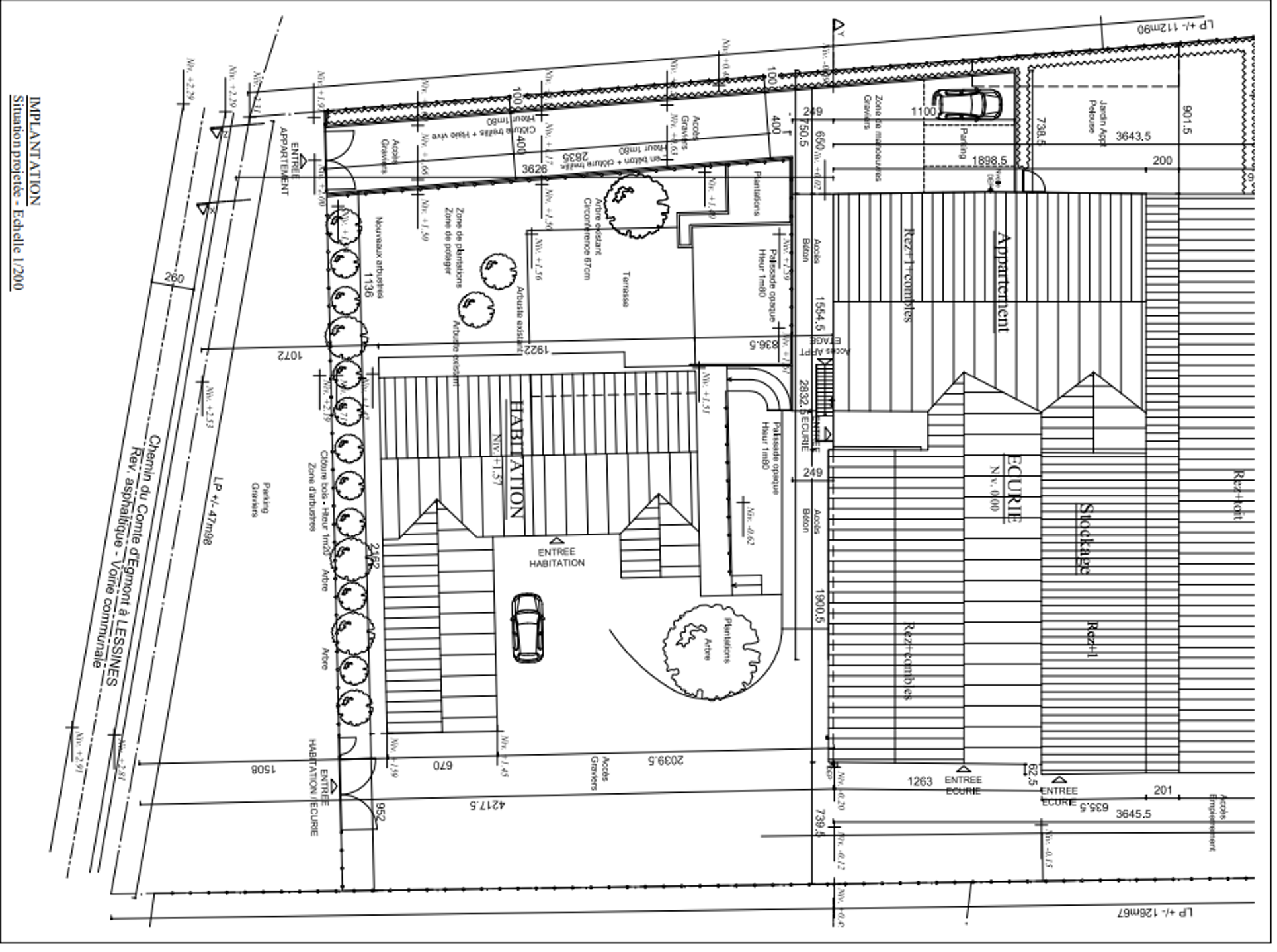
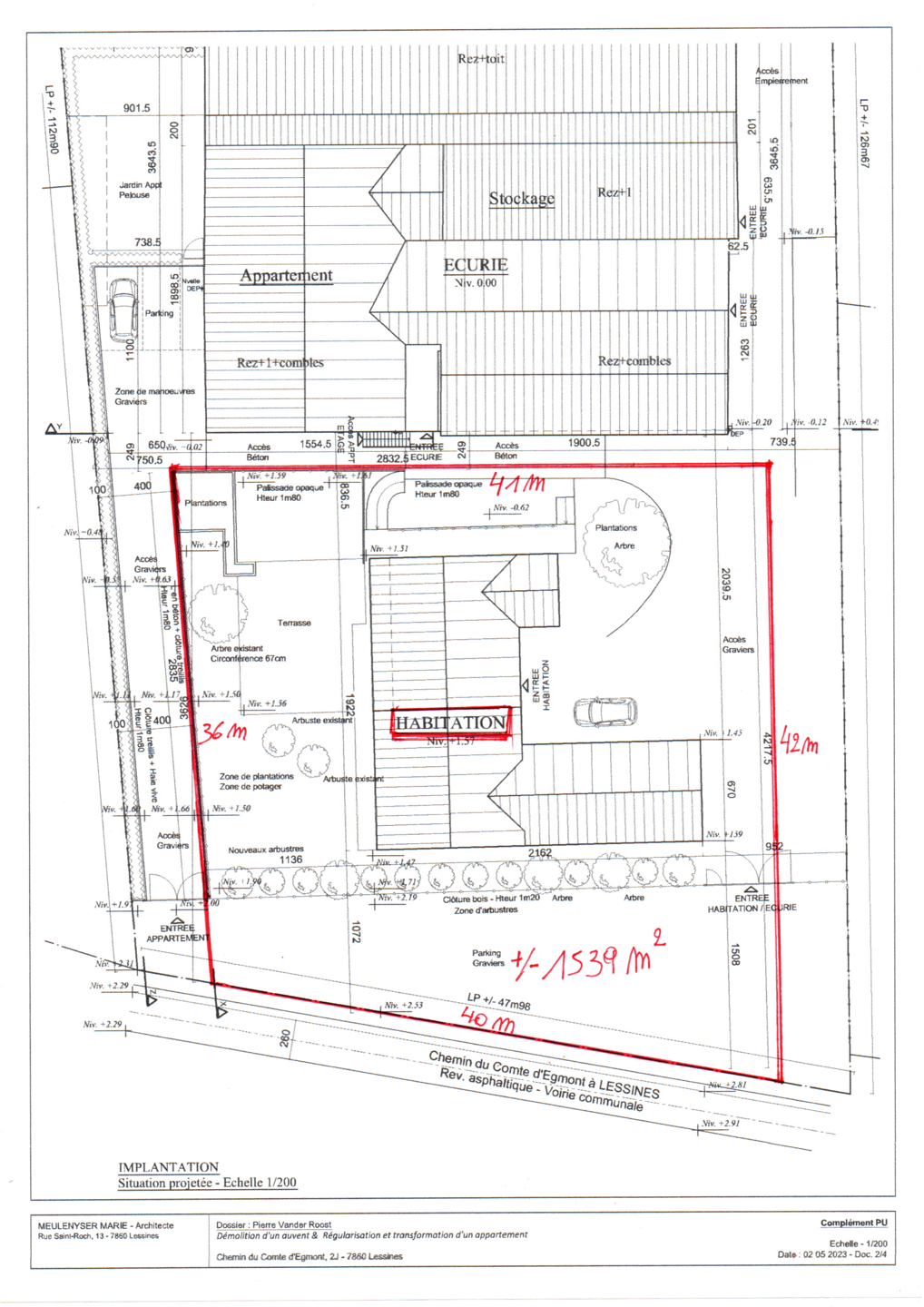
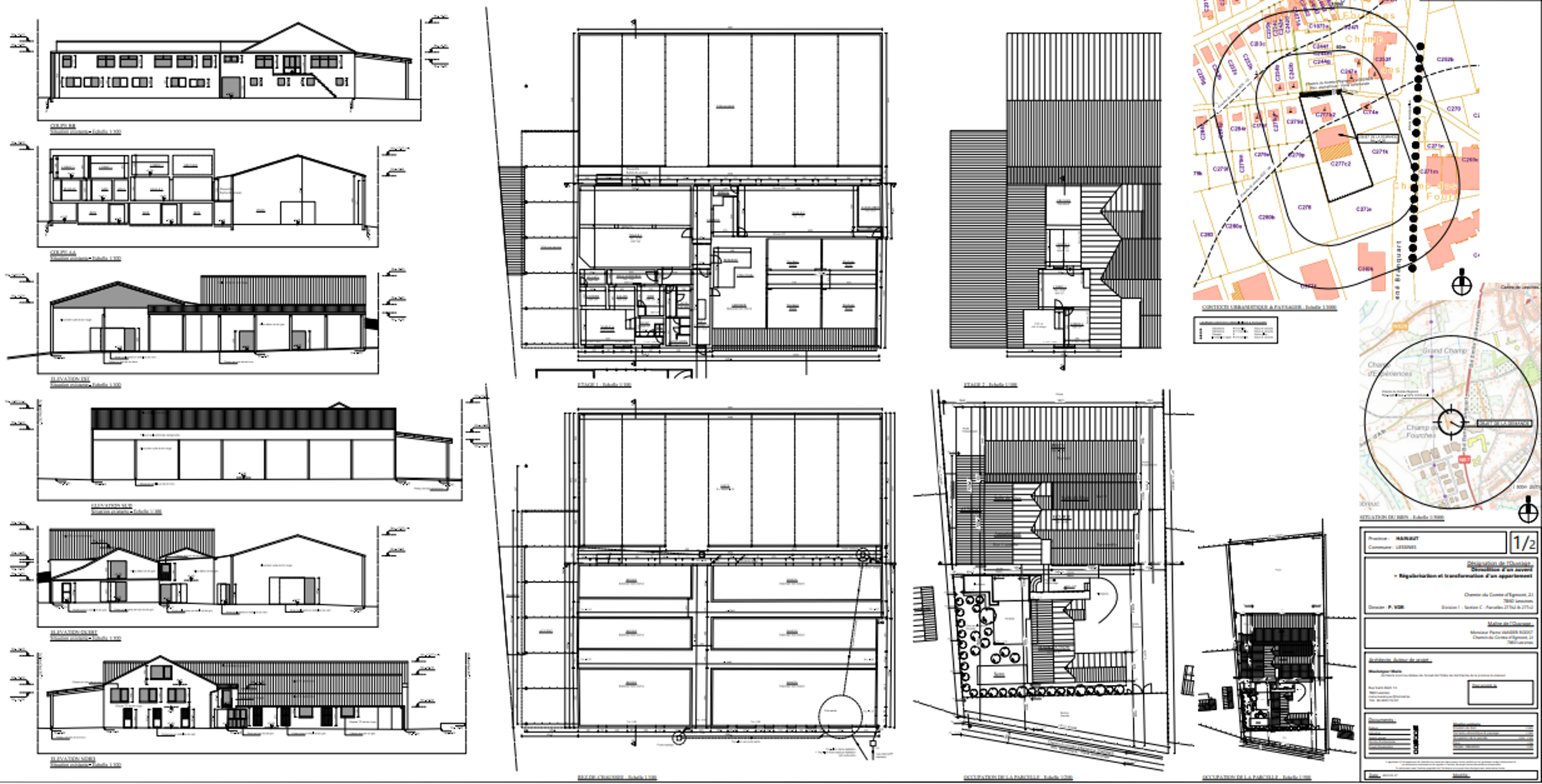
Voor meer foto's, check www.topo-immo.be - Het gebouw is volledig onderkelderd en beschikt op het gelijkvloers over een ruime inkomhal en een grote leefruimte, die momenteel is opgedeeld in twee delen door een stijlmuur aangezien het pand in gebruik is als kinderdagverblijf. Verder zijn er op het gelijkvloers twee slaapkamers, een ingerichte keuken, een apart toilet en een berging. De volledige achterbouw geeft uit op de tuin en beschikt over individuele toegangsdeuren. Daarnaast is er een dubbele garage en zijn er twee paardenboxen, momenteel ingericht als bergruimte. Op de eerste verdieping bevinden zich drie ruime slaapkamers met de mogelijkheid om er nog twee extra te creëren. De badkamer is uitgerust met een douche, een ligbad en een lavabomeubel, en er is ook een bijkomend gastentoilet voorzien. Er zijn in totaal een twintigtal parkeerplaatsen aanwezig, wat het pand eveneens geschikt maakt voor een zelfstandige activiteit. EPC label D - Elektriciteit conform - Ideale ligging tussen Geraardsbergen en Lessen - Goede verbinding met autostrade A8
Heb je interesse in deze woning?
Heb je interesse in deze woning?
Neem contact met ons op voor een bezichtiging of meer informatie.
Neem contact op met Matthias
+32 54 69 39 39Stuur een bericht naar Matthias
Neem contact op met Matthias
+32 54 69 39 39